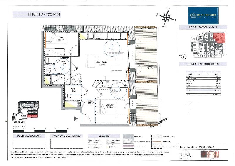
Apartment - MORZINE


Ref. A101
MORZINE - 74110
BEAU REGARD : Designed with an authentic mountain spirit, Beau Regard chalets are built with noble materials such as stones and wood. This is a fully refurbishment of former Beau Regard hotel, but will keep its emblematic facade and its original spirit. Insides are spacious, bright and cosy.

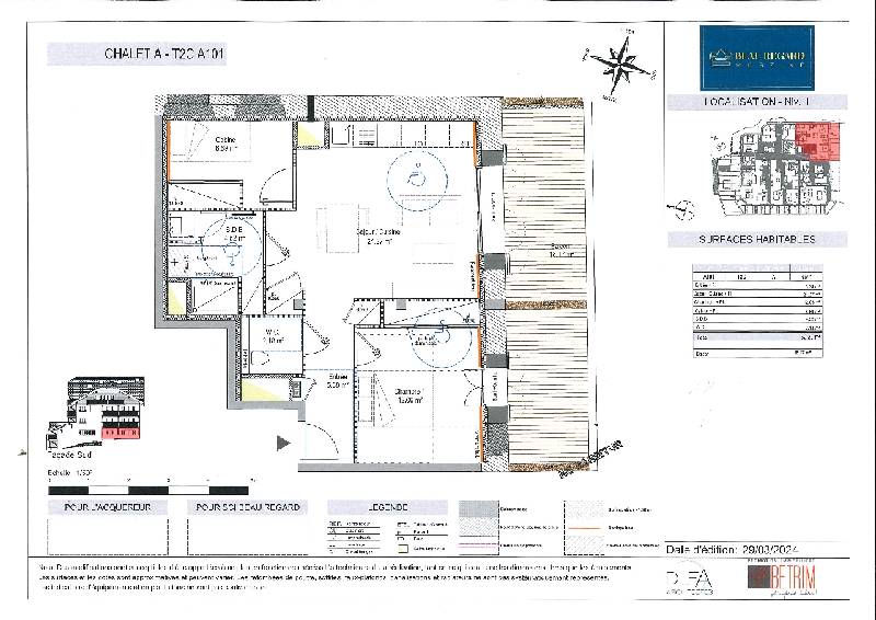
APARTMENT A101 : 1-bedroom cabine apartment of 52.2 sqm, located on the 1st level of the main building : hallway, living room with an open plan fitted kitchen, nice due South facing terrace, one large bedroom with a dressing, a cabine, a lagre shower room, separate toilets.
Underfloor heating with biopropane as main energy.
Possibility to puchase on top parkings (outside for Euros 10,000; inside for Euros 20,000).
530 000 €
Ascenseur
Oui
Floor
1
Number of rooms
3
Number of bedrooms
2
Habitable area
52 m2
Land area
18 m2
Secteur
COTEAU SUD
Situation
PROGRAMME NEUF
Construction year
2025
Heating type
Au sol à eau chaude
Number of bathrooms
1
Print Contact us