Apartment - MORZINE


Ref. A103/4
MORZINE - 74110
BEAU REGARD : Designed with an authentic mountain spirit, Beau Regard chalets are built with noble materials such as stones and wood. This is a fully refurbishment of former Beau Regard hotel, but will keep its emblematic facade and its original spirit. Insides are spacious, bright and cosy.

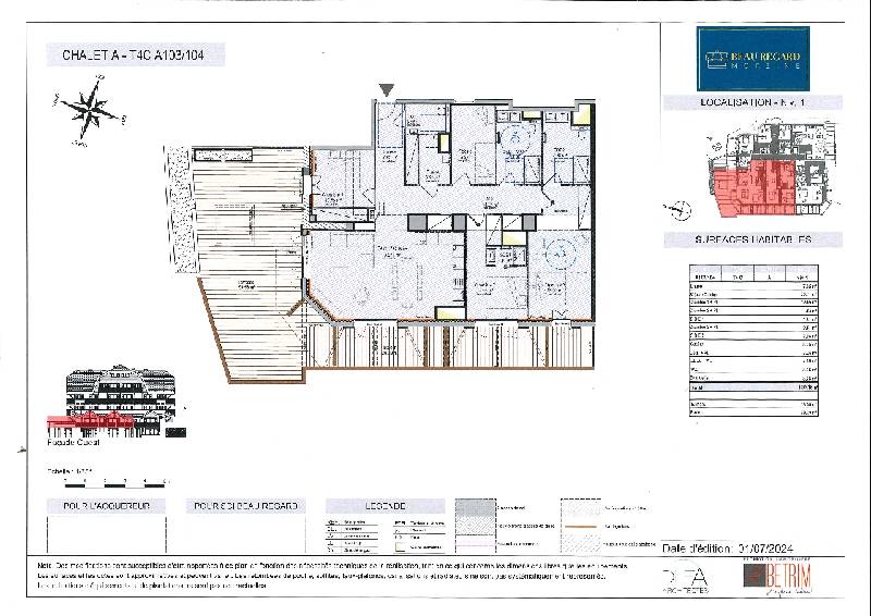
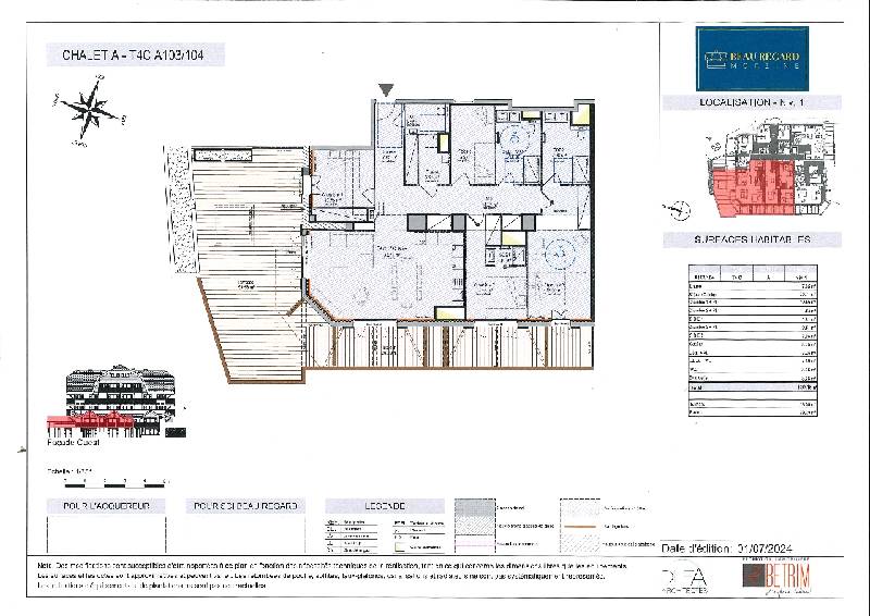
APARTMENT A103/4 : 3-bedroom cabine apartment of 129.18 sqm, located on the 1st level of the main building : hallway, lounge, dining room with an open plan fitted kitchen, nice West facing balcony (overlooking Pleney) and a large terrace of 60 sqm (North-West facing), one en suite bedroom, one master bedrrom with a large en suite (shower and toilets) and a private balcony, a third bedroom with terrace, a large cabine, a family shower room and toilets, separate toilets, a laundry room. Apartment sold with 2 private cellars !
Underfloor heating with biopropane as main energy.
Possibility to puchase on top parkings (outside for Euros 10,000; inside for Euros 20,000).
1 400 000 €
Floor
1
Number of rooms
5
Number of bedrooms
4
Habitable area
129 m2
Land area
88 m2
Secteur
COTEAU SUD
Situation
PROGRAMME NEUF
Construction year
2025
Number of bathrooms
3
Number of terraces
-1
Print Contact us