Terrain - ESSERT-ROMAND


Réf. 1401
ESSERT-ROMAND - 74110

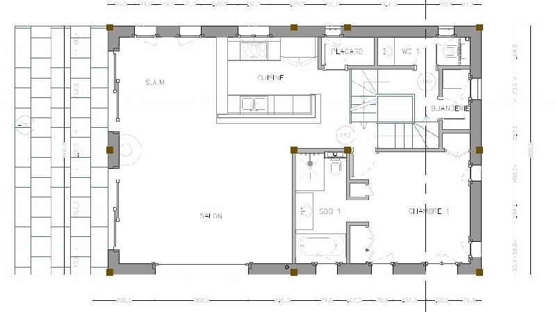
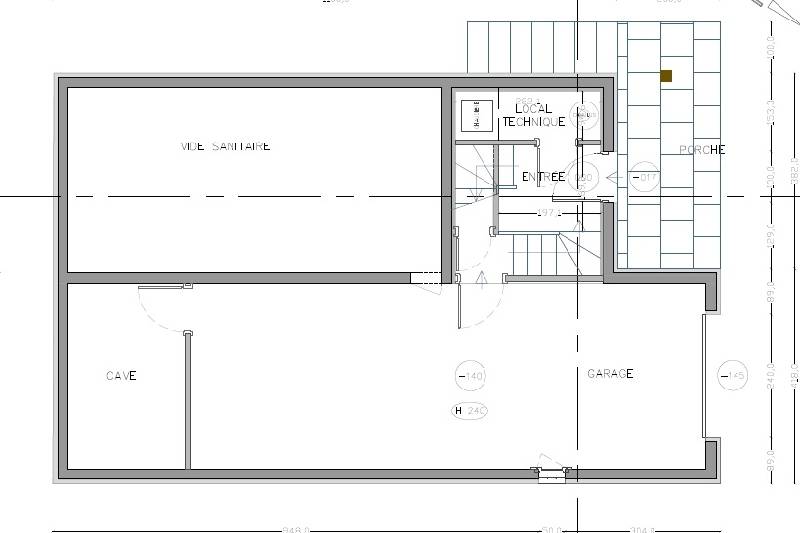
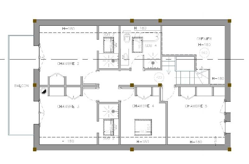
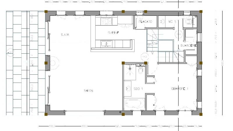
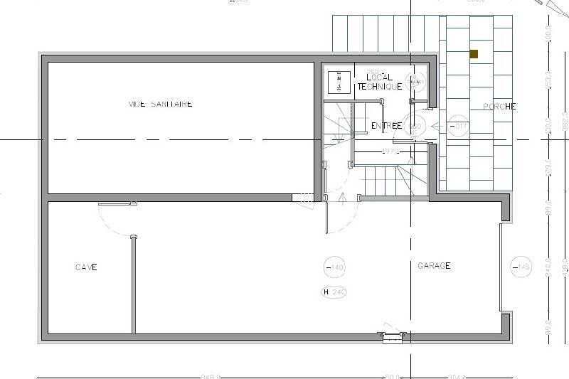
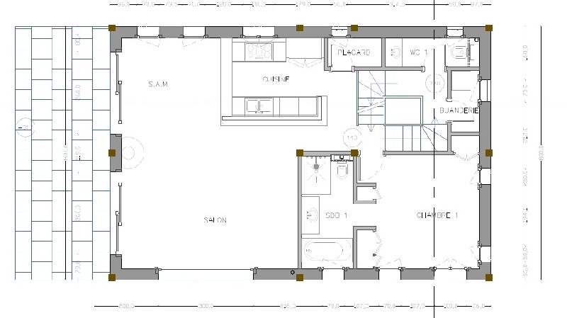
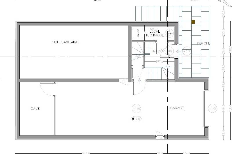
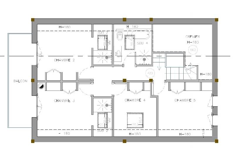
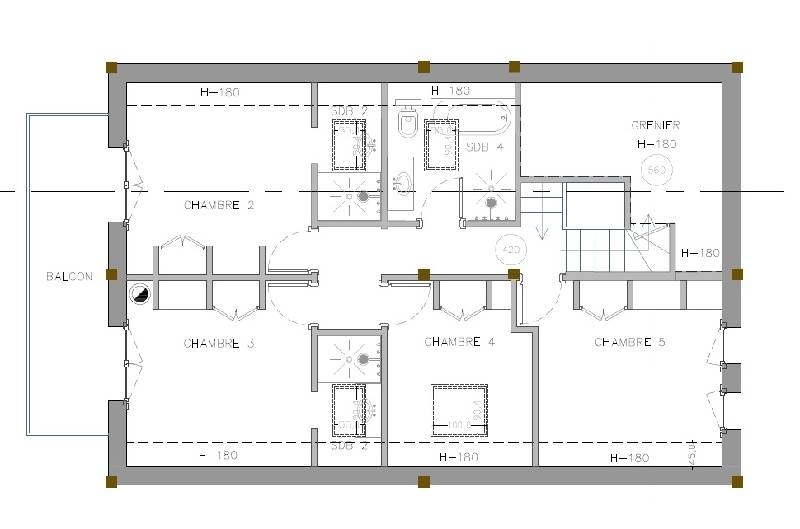
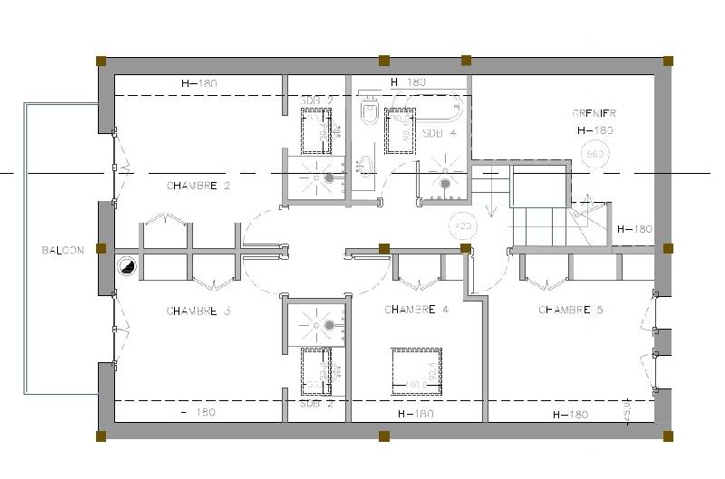
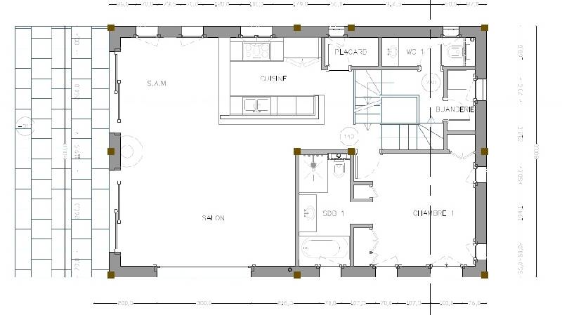
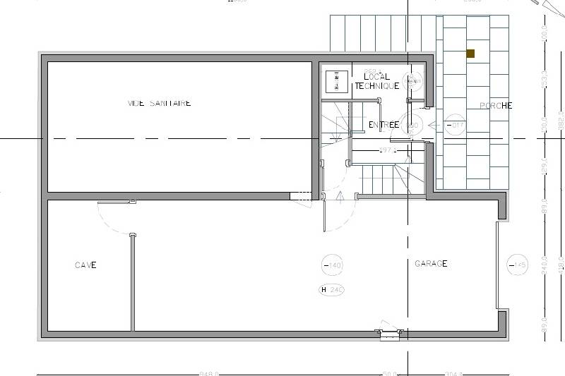
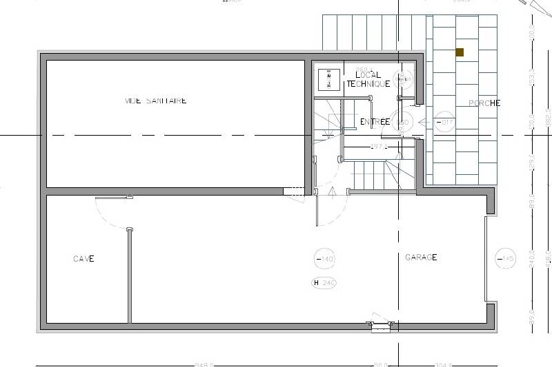
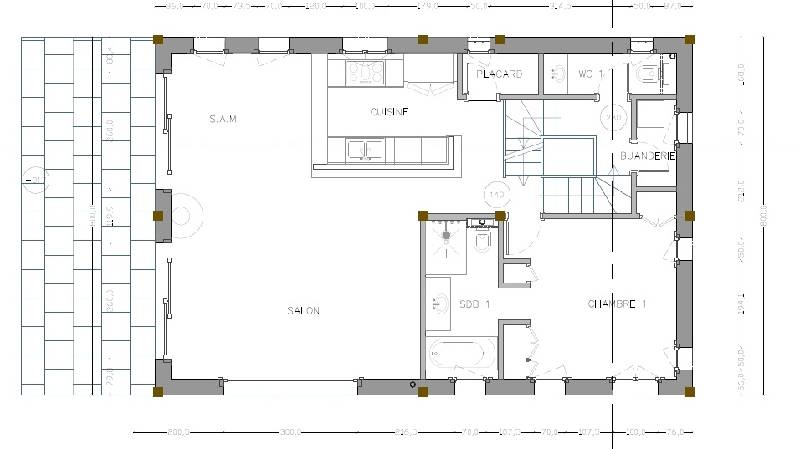
Actuellement très rare sur le marché, voici un joli terrain d'une surface de 843 m², relativement plat, situé dans une impasse de la commune d'Essert-Romand, à seulement 5 minutes de Morzine. Ce terrain est vendu avec un permis de construire, purgé de tous les recours, permettant la construction d'un chalet indépendant de 165 m². Ce chalet prévoit un joli espace de vie, 5 chambres, 4 salles de bains et un vaste garage.
Prix : 375 000 Euros *
*Honoraires à la charge du vendeur

Montant estimé des dépenses annuelles d'énergie pour un usage standard : non communiqué.



Les informations sur les risques auxquels ce bien est exposé sont disponibles sur le site Géorisques https://www.georisques.gouv.fr
375 000 €
Secteur
EXTERIEUR MORZINE
Situation
PROPRIETES DE MONTAGNE
Imprimer Nous contacter