Appartement - MORZINE


Réf. A101
MORZINE - 74110

BEAU REGARD : Conçus dans un authentique esprit de montagne, les Chalets composant la Résidence Beau Regard sont bâtis avec des matériaux nobles tels que la pierre et le bois.
Réhabilitation de l'Hôtel Beau Regard tout en conservant sa façade emblématique et son esprit originel. Les intérieurs seront spacieux, lumineux et cosy.

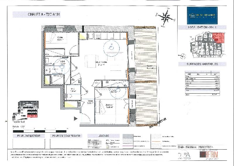
APPARTEMENT A101 : 2-pièces cabine d'une surface de 52,20 m², situé au 1er étage du bâtiment principal : entrée, séjour avec cuisine ouverte et équipée, terrasse exposée plein Sud, une belle chambre, une cabine, une salle de douche, WC indépendant.
Chauffage au sol hydrolique par biopropane.
Possibilité d'acheter des emplacements de parking (extérieur pour 10 000 Euros ou intérieur pour 20 000 Euros).
Bien en copropriété : 20 lots
Charges courantes : non renseignées
Pas de procédure en cours
Prix : 530 000 Euros *
*Honoraires à la charge du vendeur

Montant estimé des dépenses annuelles d'énergie pour un usage standard : non communiqué.



Les informations sur les risques auxquels ce bien est exposé sont disponibles sur le site Géorisques https://www.georisques.gouv.fr
530 000 €
Ascenseur
Oui
Etage
1
Nombre de pièces
3
Nombre de chambres
2
Surface habitable
52 m2
Surface terrain
18 m2
Secteur
COTEAU SUD
Situation
PROPRIETES DE MONTAGNE
Année de construction
2025
Type chauffage
Au sol à eau chaude
Nombre de salles de bains
1
Imprimer Nous contacter